- Тюменская область Тюмень
- Размещено: 21 октября 9:06
6.590.852 руб.

Номер: BLD-11887917610267771399
Тел.:
Тип предложения | Продажа |
Тип продажи | свободная продажа |
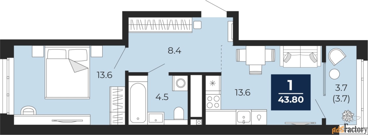
Число комнат | 1 |
Этаж | 11 |
Этажность здания | 16 |
Общая площадь (кв.м) | 43.8 |
Жилая площадь (кв.м) | 13.6 |
Площадь кухни (кв.м) | 13.6 |
Год постройки (г.) | 2025 |
Высота потолков (м.) | 2.7 |
Состояние | предчистовая |
Дополнительные параметры | |
Балкон или лоджия | |
Центральное водоснабжение |
Дом монолитный, многоподъездный, переменной этажности, от 14 до 16 этажей. Квартира находится во 2-й секции высотой 16 этажей в корпусе ГП-72.102. На этаже 6 квартир. В подъезде 1 пассажирский и 1 грузовой лифт. Окончание строительства - 4 квартал 2025 года. Оформление сделки по договору долевого участия.
Вселенная бесконечных историй. Ранее невиданный Тюмени масштаб: территория 240 гектаров и 1 650 000 м² застройки.
Мириады – это город масштабных перемен и больших возможностей. Город зеленых рощ и зеркальных озер. Город для работы, учебы и развлечений. Город для детей и их родителей. Город для всех и каждого.
Проект расположен в районе Мыс рядом с ТРЦ «Тюмень Сити Молл» в границах улицы Тимофея Чаркова, Тобольского тракта и объездной дороги. Срок полного освоения территории - до 2034 года. (AQID02522633)