- Московская область Сосенское поселение
- Размещено: 24 октября 9:03
37.060.200 руб.
Номер: BLD-11057417612858223299
Тел.:
| Тип предложения | Продажа |
| Тип продажи | свободная продажа |
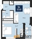
| Число комнат | 5 |
| Этаж | 2 |
| Этажность здания | 8 |
| Общая площадь (кв.м) | 135 |
| Жилая площадь (кв.м) | 86 |
| Площадь кухни (кв.м) | 10 |
| Срок сдачи (г.) | 2028 |
| Высота потолков (м.) | 3.1 |
| Состояние | без отделки |
| Дополнительные параметры | |
| Балкон или лоджия | |
| Охрана здания | |
| Центральное водоснабжение | |
| Парковка | |
Эта квартира предлагается без отделки. Будут установлены стеклопакеты с повышенной тепло- и шумоизоляцией, в квартиру заведены все коммуникации. Вы сможете в полном объеме реализовать ваши идеи обустройства вашего комфортного дома.
Дом монолитный, трехподъездный, переменной этажности, от 8 до 12 этажей. Квартира находится в 1-й секции высотой 8 этажей в корпусе бизнес-класса 5.3. На этаже 3 квартиры. В подъезде 1 грузовой лифт. Начало строительства - 3 квартал 2025 года. Окончание строительства - 1 квартал 2028 года. Оформление сделки по договору долевого участия.
Артикул квартиры по базе застройщика 41К-5.3-279.
В шаговой доступности от жилого комплекса находятся станции метро (расстояние по прямой): «Новомосковская (Коммунарка)» (800 м), «Новомосковская» (800 м), «Потапово» (900 м), также недалеко от этого корпуса находятся станции метро: «Коммунарка», «Улица Горчакова», «Бульвар адмирала Ушакова», «Ольховая», «Бунинская аллея».
ПРЕДЛОЖЕНИЯ ОТ ЗАСТРОЙЩИКА В ОКТЯБРЕ 2025:
Ипотека от 13,9 % для всех! На весь срок.
«Семейная ипотека» вернулась. Ставка от 3,5 % на весь срок! Без удорожания!
Выгодное ипотечное комбо: Ипотека от 2200 р./мес. и от 6 % после рождения ребёнка!
Ипотека для всех «Держи пять!» - ставка 5 % на 2 года!
*более подробную информацию по скидкам и акциям уточняйте в отделе продаж
Новый район «Дзен-кварталы» возводится на юго-западе столицы – вдоль береговой линии живописного Ивановского пруда и реки Варварки. В основе проекта – «сочетание несочетаемого», гармония простого и утончённого, природного и урбанистического – стиль Japandi, объединяющий скандинавскую функциональность и восточную созерцательность.
В приятном соседстве с домами нового района живописный Ивановский пруд — его береговая линия проходит по территории «Дзен-кварталов». Здесь будет благоустроена набережная для отдыха жителей нового района — по авторскому проекту Группы компаний «А101».
На территории района появятся два детских сада и крупный образовательный комплекс, в состав которого войдут детский сад и школа. Все они будут спроектированы на основе собственной концепции образовательной среды ГК «А101», разработанной экспертами в области педагогики, детский психологии и эргономики учебных пространств.
Фасадные решения выполнены в современном архитектурном стиле, основанном на сочетании японского минимализма и скандинавской функциональности. Использованы природные оттенки спокойного японского пейзажа, материалы, имитирующие натуральные поверхности – штукатурка, облицовочная плитка разных размеров и текстур. Подобный стилистический подход делает пространство созерцательными и гармоничным.
Для комфортного хранения габаритных и сезонных вещей на уровне подземного этажа спланированы удобные кладовые помещения. Доступ в них осуществляется на лифте.
Отличная транспортная доступность. 2 станции метро, «Коммунарка» и «Потапово» в минутной шаговой доступности. Обстановки общественного транспорт, транспортные развязки и удобный выезд на трассу Солнцево – Бутово – Варшавское шоссе. (AQID02502181)



