- Московская область Сосенское поселение
- Размещено: 18 октября 9:03
22.209.000 руб.

Номер: BLD-1103031760767386162
Тел.:
Тип предложения | Продажа |
Тип продажи | свободная продажа |
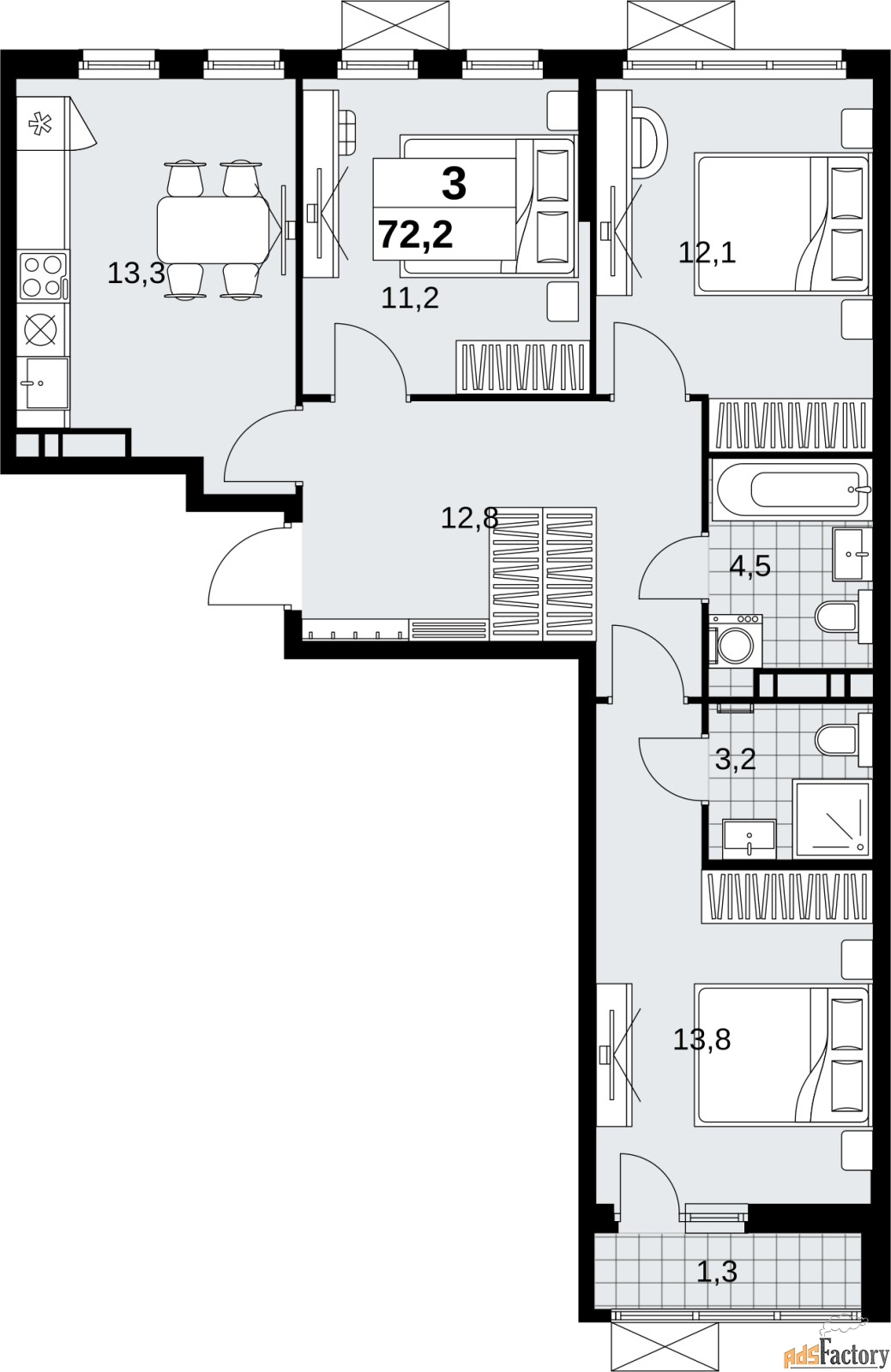
Число комнат | 3 |
Этаж | 9 |
Этажность здания | 12 |
Общая площадь (кв.м) | 72.2 |
Жилая площадь (кв.м) | 37.1 |
Площадь кухни (кв.м) | 13.30 |
Срок сдачи (г.) | 2027 |
Высота потолков (м.) | 2.95 |
Состояние | чистовая |
Дополнительные параметры | |
Балкон или лоджия | |
Охрана здания | |
Центральное водоснабжение | |
Парковка |
Корпус 2.18.2.2 в ЖК «Скандинавия», в котором находится квартира, будет построен в 2027 году. Дом монолитный, в корпусе 2 подъезда, есть 1 пассажирский и 1 грузовой лифт.
Находится в 6,5 км от МКАД в юго-западном направлении от Москвы. Несмотря на близость к трем станциям метро и трем крупным шоссе, жилые дома защищены от суеты и шума мегаполиса. Бутовский лесопарк и небольшие водоемы создают обособленное пространство для гармоничной жизни и спокойного отдыха в окружении природы.