- Московская область Сосенское поселение
- Размещено: 21 октября 9:03
9.880.376 руб.

Номер: BLD-11057417610266091796
Тел.:
Тип предложения | Продажа |
Тип продажи | свободная продажа |
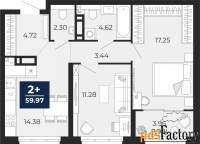
Число комнат | 1 |
Этаж | 15 |
Этажность здания | 15 |
Общая площадь (кв.м) | 23.6 |
Жилая площадь (кв.м) | 10.9 |
Площадь кухни (кв.м) | 10 |
Срок сдачи (г.) | 2026 |
Высота потолков (м.) | 2.95 |
Состояние | без отделки |
Дополнительные параметры | |
Балкон или лоджия | |
Охрана здания | |
Центральное водоснабжение | |
Парковка |
Квартира будет сдана без отделки. Установлены стеклопакеты с повышенной тепло- и шумоизоляцией, установлены элементы отопления, входная дверь, заведены все коммуникации.
Дом монолитный, двухподъездный, переменной этажности, от 9 до 15 этажей. Квартира находится во 2-й секции высотой 15 этажей в корпусе 2.18.2.4. На этаже 5 квартир. В подъезде 1 пассажирский и 1 грузовой лифт. Начало строительства - 1 квартал 2024 года. Окончание строительства - 4 квартал 2026 года. Оформление сделки по договору долевого участия.
Артикул квартиры по базе застройщика 23К-18.2.4-549.
В шаговой доступности от жилого комплекса имеются станции метро (расстояние по прямой): «Потапово» (1.0 км), «Новомосковская» (1.8 км), «Новомосковская (Коммунарка)» (1.9 км).
ПРЕДЛОЖЕНИЯ ОТ ЗАСТРОЙЩИКА В ОКТЯБРЕ 2025:
Ипотека от 13,9 % для всех! На весь срок.
«Семейная ипотека» вернулась. Ставка от 3,5 % на весь срок! Без удорожания!
Выгодное ипотечное комбо: Ипотека от 2200 р./мес. и от 6 % после рождения ребёнка!
Ипотека для всех «Держи пять!» - ставка 5 % на 2 года!
*более подробную информацию по скидкам и акциям уточняйте в отделе продаж
Жилой комплекс «Скандинавия» находится в 6,5 км от МКАД на юго-западе. Несмотря на близость к трем станциям метро и трем крупным шоссе, жилые дома защищены от суеты и шума мегаполиса. Бутовский лесопарк и небольшие водоемы создают обособленное пространство для гармоничной жизни и спокойного отдыха в окружении природы.
Микрорайон возводится в уже сложившемся районе Новой Москвы, где для детей уже построены детские сады и школа, а для взрослых работают магазины, банки и кафе. (AQID02351588)