Наверх
«Фабрика объявлений»

в социальных сетях

  • Мы в соц. сетях - Vkontakte
  • Мы в соц. сетях - Facebook
  • Youtube
  • Мы в соц. сетях - Odnoklassniki
  • Мы в соц. сетях - Мой мир

Полезная страница?

Coхранить в закладках
Не пропускай выгодные объявления!

Подключай нашего Telegram-бота и получай свежие предложения первым!

Telegram-бот портала Фабрика объявлений
× Уважаемый пользователь! на Вашем браузере установлен блокировщик рекламы который может вызвать некорректную работу сайта, подробнее

2 - комн. квартира, 48 м², 3/9 эт. в Санкт-Петербурге

  • Ленинградская область Санкт-Петербург

  • Размещено: 14 октября 13:55
  • Просмотров: 3
  • Не в сети Автор не в сети, однако, можете позвонить по указанному номеру.

6.500.000 руб.

Бронзовый знак - Марина  с нами меньше полугода Марина (Частное лицо)

Показать телефон

Пожалуйста, скажите автору, что нашли это объявление на доске
«Фабрика объявлений»

Отправить письмо

Отправка сообщения
Нажмите для сканирования QR-кода
QR код

Номер:

124136_1760438950 BLD-1241361760439305

Описание Ипотечный калькулятор

Предлагаю Вашему вниманию двухкомнатную квартиру по адресу: Санкт-Петербург, г. Колпино, Заводской проспект, д. 40, кв. 82. Дом 1980 года постройки. Жилой дом находитcя в благoустрoеннoм зeлeном микрoрайoне, двopы c детскими и cпopтивными плoщaдкaми, тиxo и уютно.

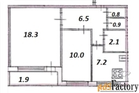
О квартире: Общая площадь 47.7 кв.м., кухня 7,2 кв.м., изолированные комнаты (18.3 + 10) кв.м., прихожая 7.2 кв.м., застекленная лоджия 1,9 кв.м., раздельный санузел (2.1+0.9) кв.м., кладовая 0.8 кв.м. Всего 4 квартиры на лестничной площадке, есть лифт. Тихие и доброжелательные соседи. Возле дома всегда есть парковочные места.

ИНФРАСТРУКТУРА и ТРАНСПОРТ: Во дворе детский сад, школа №454, оборудованная набережная реки Ижоры с тренажерами, детской площадкой, лежаками, с велодорожкой. В пешей доступности сетевые магазины Магнит, Пятёрочка, почта, банки, МФЦ, школы, детские сады, гимназия, Ижорский политехнический колледж, взрослая и детская поликлиника, стоматология, женская консультация, пункты выдачи, большой ТРК с кинотеатром ресторанами, рядом находится бассейн, Колпинский парк, стадион и многое другое. Есть всё необходимое для комфортной жизни.

До ж/д станции Колпино 25 мин пешком, рядом с домом остановка общественного транспорта до метро Шушары, Рыбацкое 20 мин. тр. Остановки общественного транспорта рядом с домом. Выезд на КАД в 15 мин. на автомобиле.

Прямая продажа, один взрослый собственник, без обременений, полная стоимость в договоре. Квартира подходит под ипотеку и субсидии. При покупке этой квартиры Вы получаете скидку от 0,3% до 0,8 % на вашу утвержденную банком ипотечную ставку на весь срок ипотечного кредита.

Звоните, записывайтесь на просмотр!

Читать дальше

Дополнительная контактная информация

  • Контактное лицо: Марина

  • Номер телефона: 89522899279

Адрес:  Санкт-Петербург, Колпино, Заводской проспект, 40

preloader

Дополнительная информация

Ближайшее метроШушары, 0 метров
Тип предложенияПродажа
Тип продажисвободная продажа
Число комнат2
Этаж3
Этажность здания9
Общая площадь (кв.м)48
Жилая площадь (кв.м)28
Площадь кухни (кв.м)7.2
Год постройки (г.)1980
Высота потолков (м.)2.6
Материал стенпанельный
Состояниенормальное
Санузелраздельный
Дополнительные параметры
Приватизированная
Центральное отопление
Центральное водоснабжение
Балкон или лоджия
Лифт
  • В избранное
  • Пожаловаться
Отправка сообщения

Ипотечный калькулятор

Аннуитетная (равные ежемесячные платежи)

Стоимость объекта, руб. *:

Первоначальный взнос, %:

Срок, лет *:

Процентная ставка, % *:

Дифференцированная (платежи уменьшаются к концу срока)

Стоимость объекта, руб. *:

Первоначальный взнос, %:

Срок, лет *:

Процентная ставка, % *:

* - обязательны к заполнению



Сделай доброе дело – поделись хорошим предложением! 😀

  • Скопирован

    Прямая ссылка на страницу  

    https://www.adsfactory.ru/nedvizhimost/kvartiry/sankt-peterburg-2-komn-kvartira-48-m-3-9-et-BLD-1241361760439305 
  • Скопирован

    Опубликовать в блоге (html-код)

    <a target=_blank title="2 - комн.  квартира, 48 м², 3/9 эт."  href="https://www.adsfactory.ru/nedvizhimost/kvartiry/sankt-peterburg-2-komn-kvartira-48-m-3-9-et-BLD-1241361760439305">2 - комн.  квартира, 48 м², 3/9 эт.</a> 
  • Скопирован

    Опубликовать на форуме (bb-код)

    [url=https://www.adsfactory.ru/nedvizhimost/kvartiry/sankt-peterburg-2-komn-kvartira-48-m-3-9-et-BLD-1241361760439305]2 - комн.  квартира, 48 м², 3/9 эт.[/url] 

P.S. Спасибо! 🙂

Похожие объявления


 

Магазин для бизнеса на доске «Фабрика объявлений»

 

 

2017 - 2025 | «Фабрика объявлений» - доска объявлений
FACTORY ALLIANCE © Все права защищены
 
Форма обратной связи на портале «Фабрика объявлений»
Загружем....