- Московская область Москва
- Размещено: 21 ноября 9:03
36.932.772 руб.
Номер: BLD-1105741763704991130
Тел.:
| Тип предложения | Продажа |
| Тип продажи | свободная продажа |
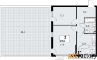
| Число комнат | 3 |
| Этаж | 14 |
| Этажность здания | 16 |
| Общая площадь (кв.м) | 64.2 |
| Жилая площадь (кв.м) | 37.5 |
| Площадь кухни (кв.м) | 10 |
| Срок сдачи (г.) | 2026 |
| Высота потолков (м.) | 3.1 |
| Состояние | предчистовая |
| Дополнительные параметры | |
| Балкон или лоджия | |
| Охрана здания | |
| Центральное водоснабжение | |
| Парковка | |
Имеется ниша под гардероб.
Дом монолитный, двухподъездный, высотой 16 этажей. Квартира находится во 2-й секции в корпусе 25. На этаже 8 квартир. В подъезде 1 пассажирский и 1 грузовой лифт. Начало строительства - 2 квартал 2023 года. Окончание строительства - 1 квартал 2026 года. Оформление сделки по договору долевого участия.
Артикул квартиры по базе застройщика 25К-25-291.
В шаговой доступности от дома находятся станции метро (расстояние по прямой): «Зорге» (500 м), «Октябрьское поле» (800 м), «Панфиловская» (900 м), «Сокол» (1.6 км), «Хорошево» (1.6 км).
ПРЕДЛОЖЕНИЯ ОТ ЗАСТРОЙЩИКА В ОКТЯБРЕ 2025:
Ипотека от 13,9 % для всех! На весь срок.
«Семейная ипотека» вернулась. Ставка от 3,5 % на весь срок! Без удорожания!
Выгодное ипотечное комбо: Ипотека от 2200 р./мес. и от 6 % после рождения ребёнка!
Ипотека для всех «Держи пять!» - ставка 5 % на 2 года!
*более подробную информацию по скидкам и акциям уточняйте в отделе продаж
«Дом на Зорге»» бизнес-класса возводится в престижном районе «Сокол» с исторической «сталинской» застройкой и статусными жилыми комплексами на границе с Хорошёвским районом Северо-Западного АО. До действующей станции метро (и МЦК) «Зорге» всего 350 метров.
«Дом на Зорге» отличается элегантным и статусным внешним видом – идеально соответствует «дресс-коду» исторического окружения и в тоже время обращает на себя внимание.
Вентилируемые фасады облицованы фиброцементными и керамогранитными панелями, которые повторяют фактуру натурального камня и бетона. Кондиционеры скроют корзины и стильные блоки, расположенные в декоративных элементах фасада. Мягкая архитектурно-художественная подсветка подчеркнёт благородный экстерьер дома.
Сформированная инфраструктура района предоставит жителям богатый выбор мест для отдыха, шопинга и занятий спортом. На первом этаже «Дома на Зорге» откроются уютные магазины, атмосферные кафе и салоны красоты с отличным сервисом.
Здесь предусмотрено всё для удобства, позитивного настроения и безопасности жителей. В закрытый двор не войдут посторонние. Автомобили останутся за периметром или в подземном паркинге.
Две 16-этажных секции дома соединит лобби с дизайнерской отделкой. Оно станет стильным общественным пространством и главным входом для жителей, также ведущим в скрытый от посторонних глаз приватный внутренний двор.
Всего в локации – более четырёх десятков разнообразных учебных учреждений для детей, включая легендарную «Курчатовскую школу». В шаговой доступности находятся корпуса школы № 1251 имени генерала Шарля де Голля – с дошкольным отделением.
На территории дома будут благоустроены общий и приватный (доступный только жителям) дворы. Дизайн каждой функциональной зоны уникален, а вместе они подчёркивают благородный архитектурный стиль здания. В основе цветовых решений – «отражение» фасадов, мягкие природные оттенки. (AQID02221237)



