- Ленинградская область Малое Верево
- Размещено: 3 декабря 9:00
6.449.382 руб.
Номер: BLD-9876517647416251224
Тел.:
| Тип предложения | Продажа |
| Тип продажи | свободная продажа |
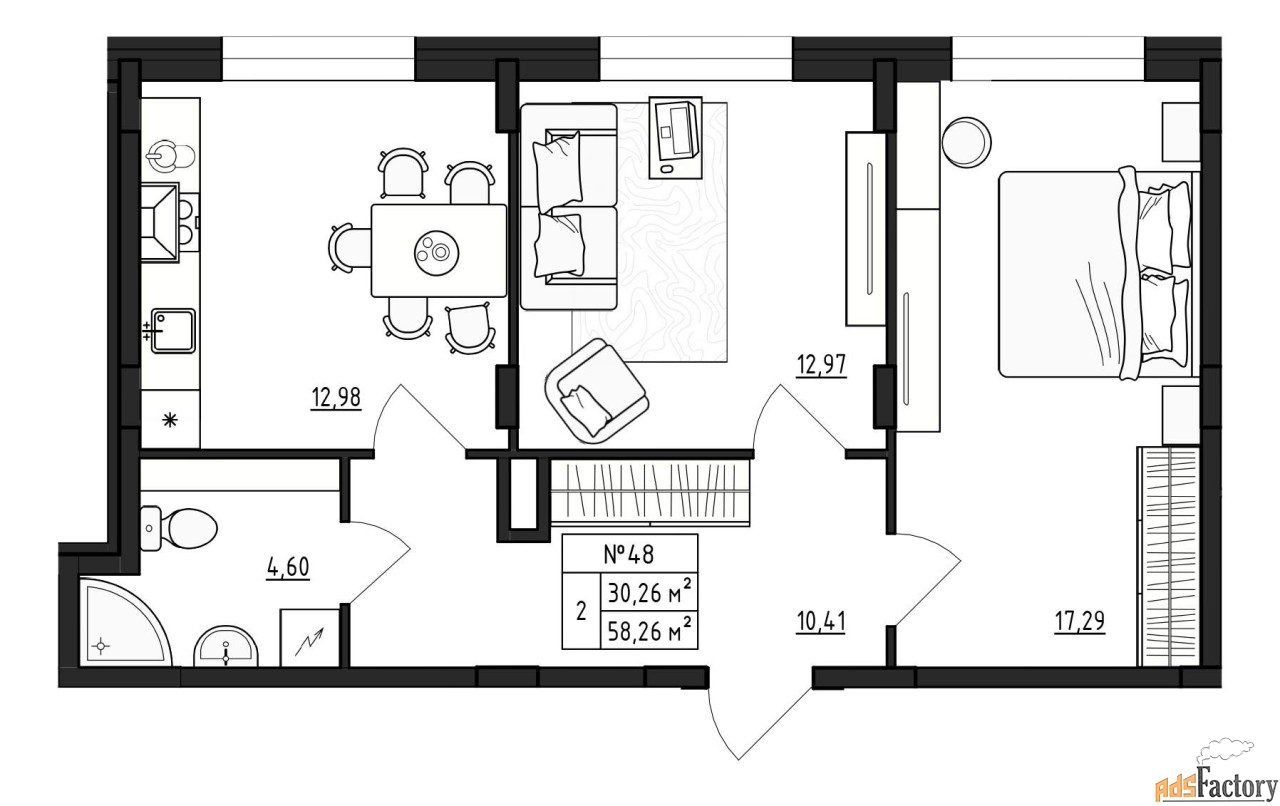
| Число комнат | 2 |
| Этаж | 1 |
| Этажность здания | 4 |
| Общая площадь (кв.м) | 58.26 |
| Жилая площадь (кв.м) | 30.26 |
| Площадь кухни (кв.м) | 12.99 |
| Год постройки (г.) | 2025 |
| Материал стен | кирпично-монолитный |
| Состояние | черновая отделка |
| Дополнительные параметры | |
| Охрана здания | |
| Центральное водоснабжение | |
| Парковка | |
Жилая площадь 30.26 м2, кухня 12.99 м2, квартира без отделки.
Квартира располагается на 1 этаже 4-этажного дома в ЖК Верево Сити.
Застройщик - Строй Бизнес Групп специализированный застройщик, сдача дома - II квартал 2025 года, закрытая территория.
Парковка автомобилей - наземная, парковка охраняется. Обеспечение безопасности: видеонаблюдение. Инфраструктура: школа, детский сад, поликлиника, детские площадки, спортивные площадки, места для отдыха, супермаркет.
Для бронирования конкретной квартиры звоните по номеру телефона в объявлении.
ЖК Верево Сити - это современный городской жилой квартал малоэтажной застройки.
В 10-ти четырехэтажных корпусах сможет поселиться 1171 семья. Дома располагаются блоками, образуя уютные закрытые и безопасные дворы с большим количеством зеленых насаждений и с зонами отдыха для взрослых и детей.
В ЖК Верево Сити самое низкое ценовое предложение в Ленинградской области и пригородах Санкт-Петербурга, что позволит вам приобрести жилье большей площади, нежели в других жилых комплексах.
Отделка - черновая.
Комфортная среда для жизни:
- малоэтажные красивые здания современной архитектуры, с большой площадью остекления
- обособленная территория
- продуманные планировки, как привычные одно- и двухкомнатные квартиры, так и европланировки
- небольшая плотность населения: комплекс располагается на 6,5 га земли
- полная внутренняя инфраструктура, которая позволит жить с комфортом
Позвоните и узнайте условия покупки прямо сейчас!
Аккредитованные банки: ПАО Сбербанк
Позвоните и узнайте условия покупки прямо сейчас! [#7220599#]



