- Московская область деревня Прокшино
- Размещено: 4 ноября 9:03
23.157.000 руб.
Номер: BLD-11057417622362021896
Тел.:
| Тип предложения | Продажа |
| Тип продажи | свободная продажа |
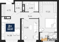
| Число комнат | 3 |
| Этаж | 8 |
| Этажность здания | 12 |
| Общая площадь (кв.м) | 60 |
| Жилая площадь (кв.м) | 36.5 |
| Площадь кухни (кв.м) | 10 |
| Срок сдачи (г.) | 2027 |
| Высота потолков (м.) | 2.95 |
| Состояние | чистовая |
| Дополнительные параметры | |
| Балкон или лоджия | |
| Охрана здания | |
| Центральное водоснабжение | |
| Парковка | |
Эта квартира будет сдана с дизайнеркой отделкой «под ключ». Специально для проекта «Прокшино» разработаны два стиля дизайнерской отделки – в тёплых и холодных тонах. В отделке используются только современный высококлассные материалы, на все работы предоставляется гарантия.
Дом монолитный, трехподъездный, переменной этажности, от 12 до 17 этажей. Квартира находится в 3-й секции высотой 12 этажей в корпусе 7.1.2. На этаже 5 квартир. В подъезде 1 пассажирский и 1 грузовой лифт. Начало строительства - 4 квартал 2024 года. Окончание строительства - 2 квартал 2027 года. Оформление сделки по договору долевого участия.
Артикул квартиры по базе застройщика 58К-7.1.2-383.
В шаговой доступности от жилого комплекса находятся станции метро (расстояние по прямой): «Филатов луг» (1.4 км), «Прокшино» (1.7 км), также недалеко от этого корпуса находятся станции метро: «Саларьево», «Румянцево», «Теплый стан».
ПРЕДЛОЖЕНИЯ ОТ ЗАСТРОЙЩИКА В ОКТЯБРЕ 2025:
Ипотека от 13,9 % для всех! На весь срок.
«Семейная ипотека» вернулась. Ставка от 3,5 % на весь срок! Без удорожания!
Выгодное ипотечное комбо: Ипотека от 2200 р./мес. и от 6 % после рождения ребёнка!
Ипотека для всех «Держи пять!» - ставка 5 % на 2 года!
*более подробную информацию по скидкам и акциям уточняйте в отделе продаж
ЖК «Прокшино» расположен в 7,6 км от МКАД в Новой Москве. В 8 минутах пешком находится станция метро «Прокшино» быстрой и комфортной красной линии метро. Высокую транспортную доступность обеспечивают и два крупных шоссе, до которых легко доехать за 5 минут по новой скоростной автотрассе Солнцево – Бутово – Варшавское шоссе. Жилой комплекс «Прокшино» входит в кластер Прокшино. В районе появятся дома комфорт и бизнес-класса с подземным паркингом, закрытыми благоустроенными дворами без машин, местами для активного и созерцательного отдыха, магазинами, бытовыми сервисами и другими коммерческими объектами. Рядом пруд с собственной набережной и городской парк «Хованская дубрава». Для маленьких жителей построят детские сады, образовательный комплекс. (AQID02422071)



