- Тамбовская область Тамбов
- Размещено: 12 декабря 9:00
260.400 руб.
Номер: BLD-987651765519210236
Тел.:
| Тип предложения | Продажа |
| Вид объекта | свободного назначения |
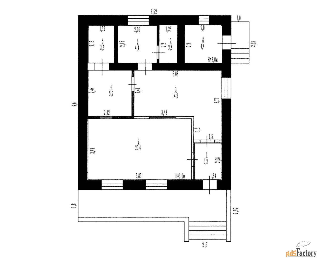
| Площадь (м²) | 58.6 |
Продажа посредством проведения торгов на электронной площадке Сбербанк-АСТ.
Номер процедуры: SBR065-2511100007
Собственник: Центрально-Черноземный банк ПАО Сбербанк
О лоте:
Нежилое здание общей площадью 58,6 кв.м. Этажность: 1
Кадастровый номер: 68:18:1001002:214
Недвижимое имущество расположено на земельном участке площадью 135 кв. м: Кадастровый номер: 68:18:1001006:178
ВРИ: здание банка
Категория земель: под размещение операционной кассы вне кассового узла №3773/0102
Права на земельный участок: собственность
Обратная аренда: нет
Особые условия: нет
Дополнительная информация, документы и условия реализации указаны на площадке в разделе «Документы». По всем вопросам, связанным с лотом, обращайтесь в рабочее время по телефону с 09: 00 до 18: 00 по МСК. [#7283704#]



