- Тульская область Суворов
- Размещено: 12 декабря 9:00
4.364.400 руб.
Номер: BLD-987651765519212371
Тел.:
| Тип предложения | Продажа |
| Вид объекта | свободного назначения |
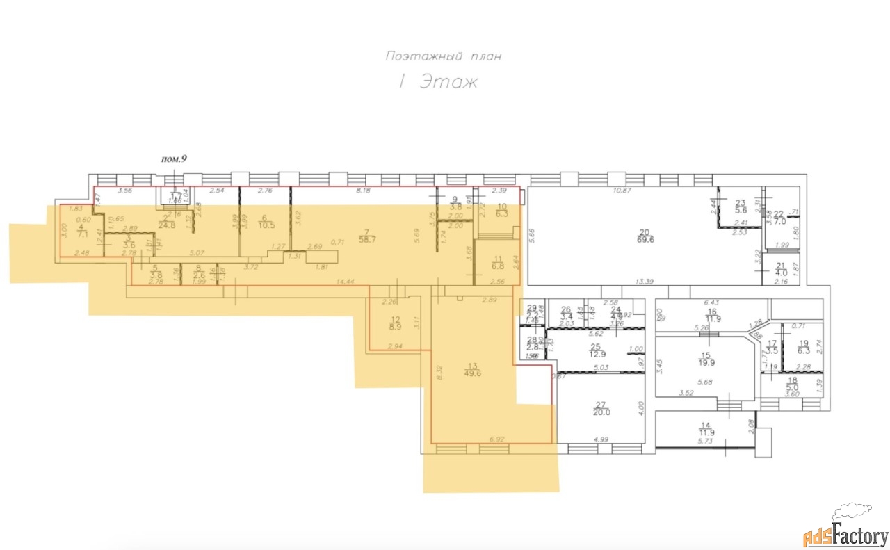
| Площадь (м²) | 188.2 |
Продажа посредством проведения торгов на электронной площадке Сбербанк-АСТ.
Номер процедуры: SBR065-2510200011
Собственник: Среднерусский банк ПАО Сбербанк
О лоте:
Нежилое помещение площадью 188,2 кв.м
Этажность: 1/4
Кадастровый номер: 71:18:030212:10220
Обратная аренда: нет
Особые условия: Покупатель обязан заключить отдельные договоры с ресурсоснабжающими/обслуживающими организациями на поставку коммунальных услуг. Описание обеспеченности помещения коммунальными сетями прилагается к материалам торгов.
Дополнительная информация, документы и условия реализации указаны на площадке в разделе «Документы».
По всем вопросам, связанным с лотом, обращайтесь в рабочее время по телефону с 09:00 до 18:00 по МСК. [#7471098#]



