- Краснодарский край Сочи
- Размещено: 12 декабря 9:00
186.651 руб.
Номер: BLD-987651765519210204
Тел.:
| Тип предложения | Сдам в аренду (долгосрочно) |
| Вид объекта | свободного назначения |
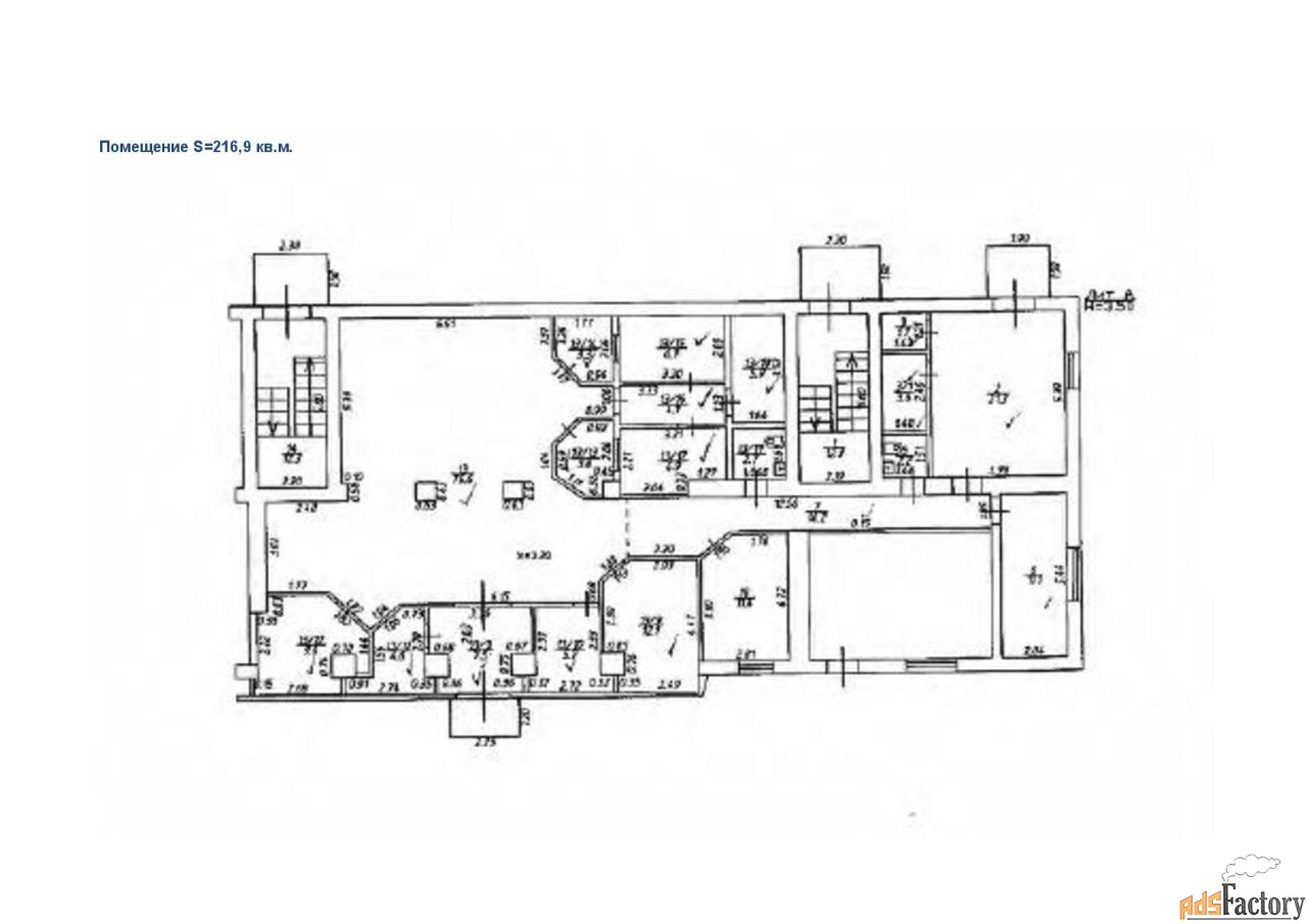
| Площадь (м²) | 111.7 |
Аренда посредством проведения торгов на электронной площадке Сбербанк-АСТ.
Номер процедуры: SBR065-2507170005
Собственник: Юго-Западный Банк ПАО Сбербанк
О лоте:
Нежилое здание общей площадью: 111,7 кв. м
Этаж: 1/1
кадастровый номер: 23:49:0125007:1224
Срок аренды: не более 5 лет
Особые условия:
На объекте располагается ПАО Сбербанк ВСП № 1806/0142, дата закрытия офиса 01.12.2025г., передача объекта Продавцом Покупателю осуществляется не ранее 01.12.2025г., остальные условия отражены в «Аукционной документации».
Дополнительная информация, документы и условия реализации указаны на площадке в разделе «Документы».
По всем вопросам, связанным с лотом, обращайтесь в рабочее время по телефону с 09: 00 до 18: 00 по МСК [#7196791#]



