- Удмуртия Сарапул
- Размещено: 8 октября 9:00
2.586.800 руб.

Номер: BLD-987651759903214527
Тел.:
Тип предложения | Продажа |
Вид объекта | свободного назначения |
Площадь (м²) | 68.2 |
Реализация посредством проведения торгов на электронной площадке Сбербанк-АСТ.
Номер процедуры: SBR065-2508280003
Собственник: Волго-Вятский банк ПАО Сбербанк
О лоте:
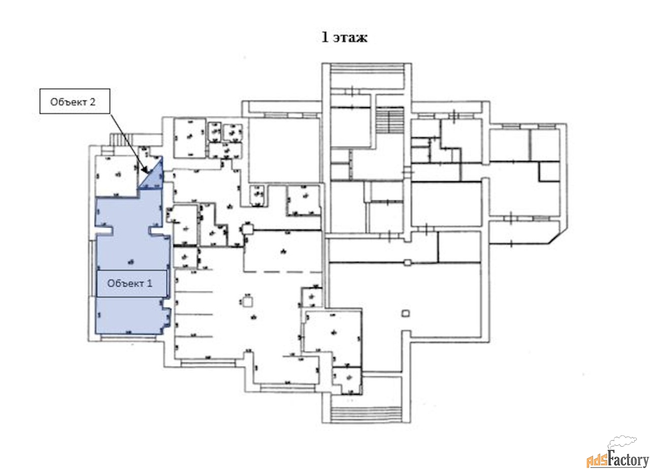
Объект № 1:
Недвижимое имущество ориентировочной площадью 68,2 кв.м:
Этажность: 1
Кадастрвоый номер: 18:30:000071:413
Объект №2:
1/2 доли нежилого помещения общей ориентировочной площадью 6,4 кв.м., площадью 3,2 кв.м
Обратная аренда: нет
Особые условия: Отложенные условия по передаче Имущества Покупателю не позднее 9 (Девяти) месяцев с даты заключения Договора (для целей проведения кадастровых работ), остальные условия указаны в «Аукционной документации» к лоту
Дополнительная информация, документы и условия реализации указаны на площадке в разделе «Документы».
По всем вопросам, связанным с лотом, обращайтесь в рабочее время по телефону с 09:00 до 18:00 по МСК. [#7399302#]