- Ленинградская область Санкт-Петербург
- Размещено: 30 сентября 9:00
52.429.328 руб.

Номер: BLD-987651759212010162
Тел.:
Ближайшее метро | Улица Дыбенко, 0 метров |
Тип предложения | Продажа |
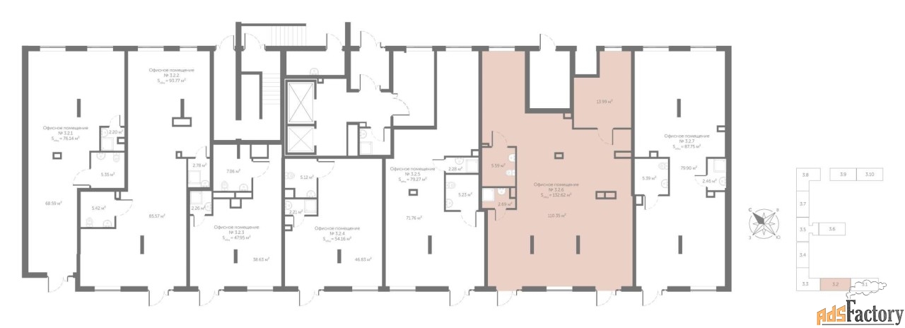
Вид объекта | свободного назначения |
Площадь (м²) | 132.62 |
«Zoom на Неве» расположен на берегу Невы в непосредственной близости от центра города. Комплекс состоит на 1 700 апартаментов. Локация, масштаб объекта и тип недвижимости - слагаемые высокой потребительской активности среди жителей и гостей комплекса. [#6864119#]