- Воронежская область Россошь
- Размещено: 12 декабря 9:00
44.229 руб.
Номер: BLD-987651765519210205
Тел.:
| Тип предложения | Сдам в аренду (долгосрочно) |
| Вид объекта | свободного назначения |
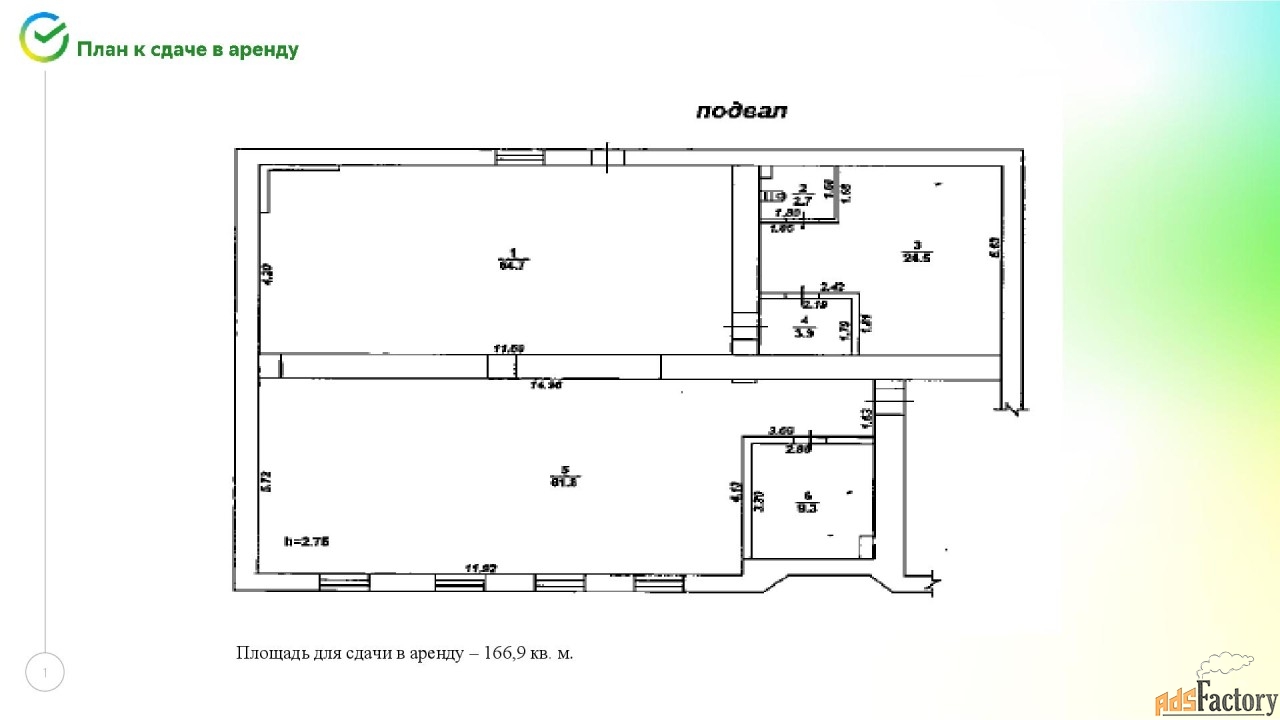
| Площадь (м²) | 166.9 |
Аренда посредством проведения торгов на электронной площадке Сбербанк-АСТ.
Номер процедуры: SBR065-2507180001
Собственник: Центрально-Черноземный банк ПАО Сбербанк
О лоте:
Нежилое помещение общей площадью: 166,9 кв. м
Этаж: 1/1
кадастровый номер :36:27:0012022:45
Срок аренды: 60 месяцев
Дополнительная информация, документы и условия реализации указаны на площадке в разделе «Документы».
По всем вопросам, связанным с лотом, обращайтесь в рабочее время по телефону с 09: 00 до 18: 00 по МСК [#7199620#]



