- Омская область Омск
 - Размещено: 3 ноября 9:03
 
70.000.000 руб.
Номер: BLD-945381762149834121
Тел.:
| Тип предложения | Продажа | 
| Вид объекта | производственно-складской комплекс/помещение | 
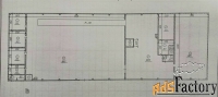
| Площадь (м²) | 2600 | 
Производственная база состоящая из нескольких объектов.
Производственный корпус с офисными и бытовыми помещениями 1900м высота 9м, утеплен, частично отапливаемый.
Гаражный комплекс: трое ворот высота 3,3м, кирпичный, отапливамый 600м
Холодный склад, эстакада для погрузки, автомобильные весы, проходная-весовая.
площадь земельного участка 6900 м в собственности.
Водоснабжение, канализация.
Газ мощность 120м3 в час. Газопровод, ГРПШ в собственности.
Электричество 420 кВт.ь - 1.



