- Ленинградская область Мурино
- Размещено: 30 сентября 9:00
12.094.180 руб.

Номер: BLD-987651759212011179
Тел.:
Тип предложения | Продажа |
Вид объекта | свободного назначения |
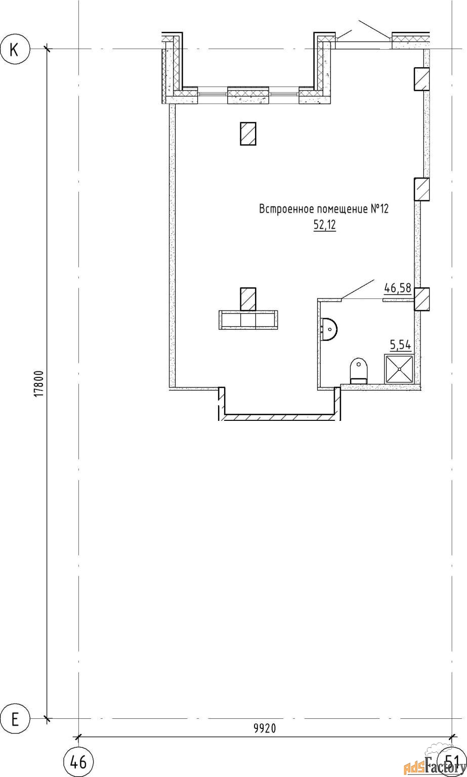
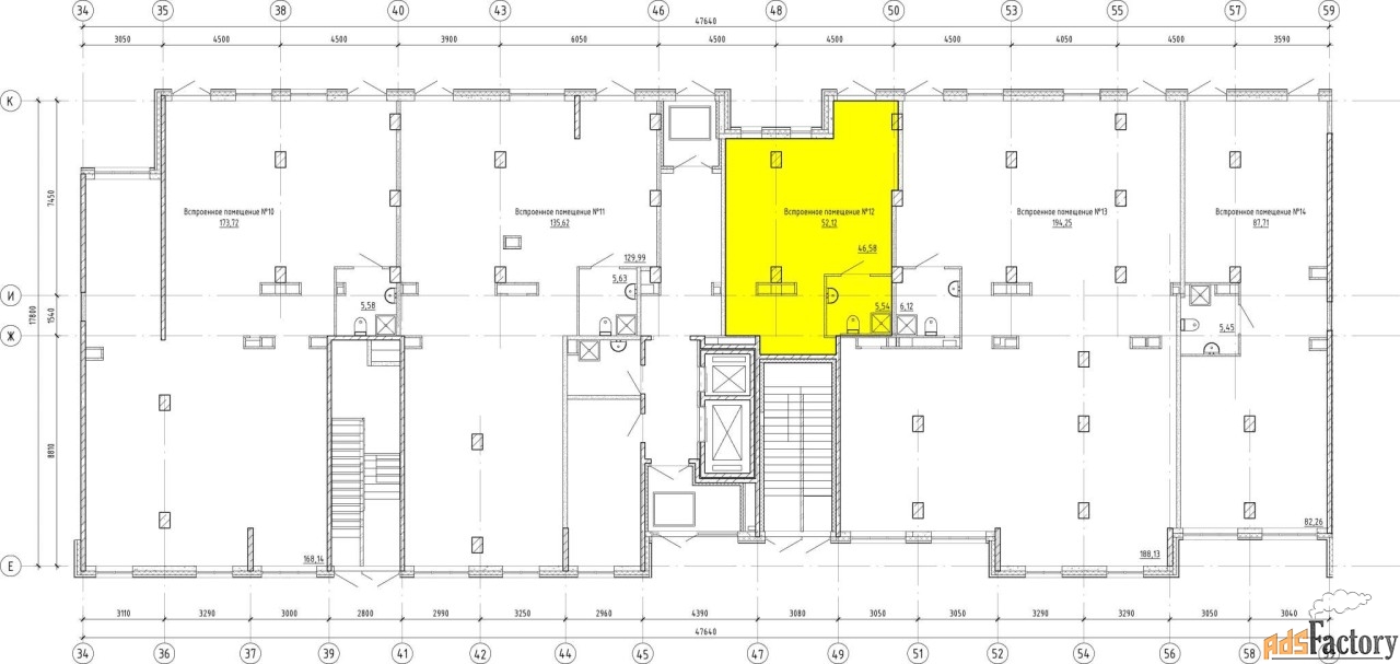
Площадь (м²) | 52.12 |
UP-квартал «Воронцовский» - жилой комплекс класса комфорт+ в Новом Девяткино. В составе комплекса: 3 корпуса по 12 этажей - на 1 900 квартир. Комплекс расположен в обжитом районе по соседству с уже заселенными многоквартирными домами, что дополнительно увеличивает потенциальный пешеходный трафик.
Единый текст для всех проектов
Преимущества помещения:
- Безбарьерный вход на уровне земли
- Большие витринные окна
- Открытая планировка. Гибкие возможности кастомизации помещения под ваши задачи.
- Возможность объединения с соседними помещениями
- Высота потолков до 3,7
- Подведены все инженерные коммуникации
- Оптимальная мощность электроснабжения
- Возможность размещения рекламной вывески
- Место для установки кондиционеров [#6937931#]