- Московская область Москва
- Размещено: 29 декабря 9:00
45.858.000 руб.
Номер: BLD-987651766988008268
Тел.:
| Ближайшее метро | Шипиловская, 0 метров |
| Тип предложения | Продажа |
| Вид объекта | свободного назначения |
| Площадь (м²) | 186 |
Реализация посредством проведения торгов на электронной площадке Сбербанк-АСТ.
Номер процедуры: SBR065-2508270007
Собственник: Московский банк ПАО Сбербанк
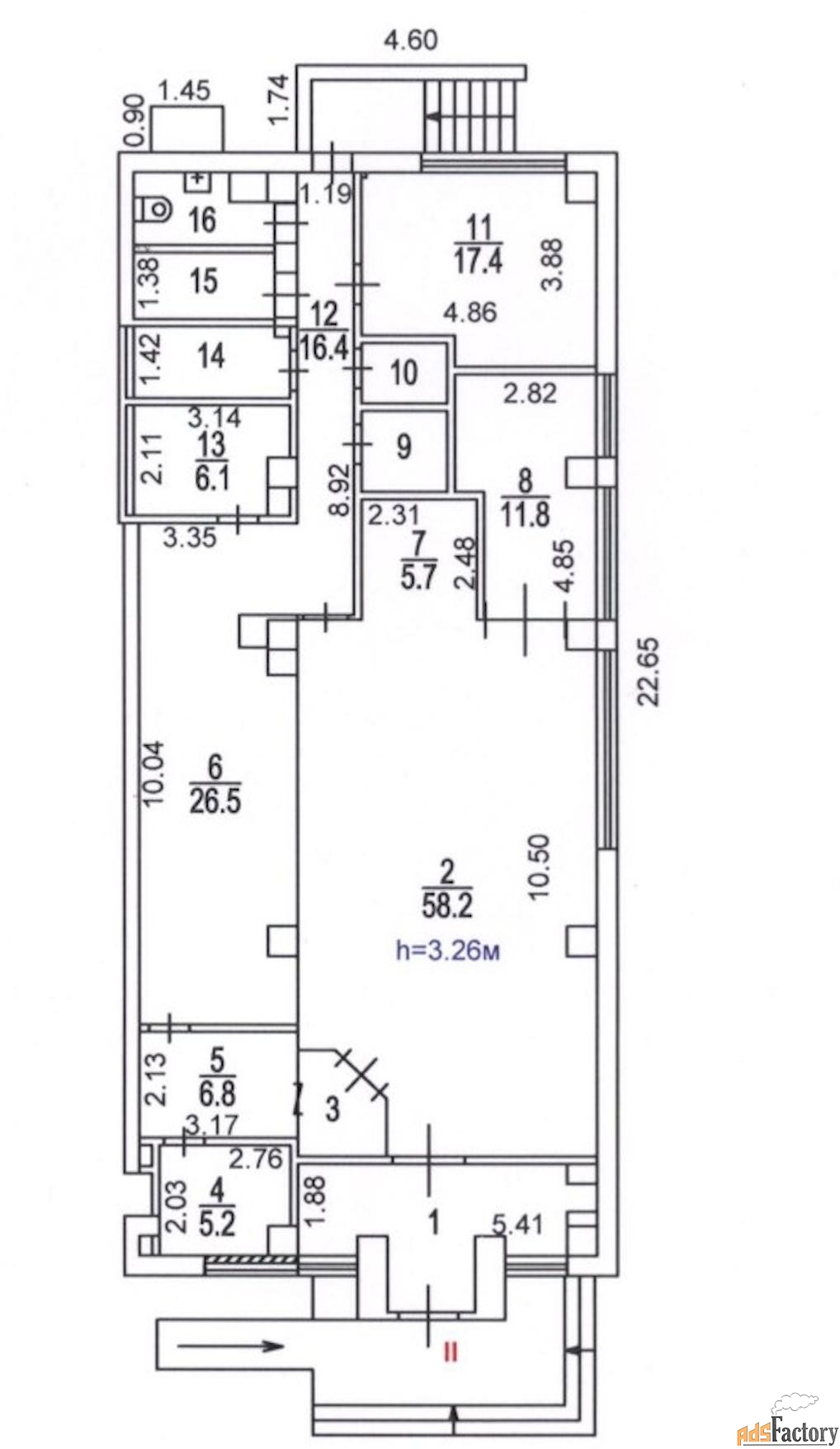
О лоте:
Нежилое помещение общей площадью 186,7 м2
Этаж: 1/7
Кадастровый номер: 77:05:0000000:2657
Обратная аренда: нет
Особые условия:
На Объекте произведена перепланировка, не согласованная в установленном законом порядке.
Отлагательное условие по передачи Объекта: передача Объекта по акту приема-передачи осуществляется не позднее 20.01.2026г.
Дополнительная информация, документы и условия реализации указаны на площадке в разделе «Документы».
По всем вопросам, связанным с лотом, обращайтесь в рабочее время по телефону с 09:00 до 18:00 по МСК. [#7367147#]



