- Московская область Москва
- Размещено: 1 октября 9:00
178.800.120 руб.

Номер: BLD-987651759298419738
Тел.:
Ближайшее метро | Хорошевская, 0 метров |
Тип предложения | Продажа |
Вид объекта | офисное помещение |
Площадь (м²) | 320 |
Развивающийся бизнес район Большого Сити, 5 минут на авто до MоскваСити.
Oбъект будeт поcтpоeн в 1 квaртaле 2026г. , РНС 77-09-021792-2024 от 01.11.2024
Расположение
Отличная транспортная доступность за счёт пересечения Звенигородского шоссе и Третьего транспортного кольца, в 5 минутах на автомобиле от ММДЦ \"Москва-Сити.
- 1,1 км до ТТК, 3.0 км до Москва-Сити, удобный съезд с ТТК и Звенигородского шоссе
- 1,1 км (12 мин. пешком) до м. Полежаевская, Хорошёвская (БКЛ)
- 1.6 км до станции м. Беговая
- 4,3 км до Ленинградского проспекта
Преимущества
- Оптимальное поэтажное разделение площадей для последующей аренды или личного пользования
- Уникальный архитектурный дизайн, одобренный Москомархитектуры и мэрией города Москвы
- Активно развивающийся бизнес район Большого Сити с высоким спросом на коммерческую недвижимость и стабильным ростом цен
- Территориальная синергия с одним из крупнейших российских ЦОД
- Возводимые в шаговой доступности комплексы апартаментов и ЖК бизнес-класса позволит обеспечить резидентов комфортным жильём и необходимой городской инфраструктурой
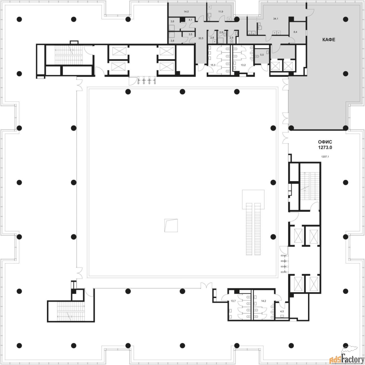
Авторская архитектура здания и просторный атриум создадут комфортную атмосферу для сотрудников и клиентов.
Широкие возможности для организации офисных помещений под потребности различных пользователей:
- просторная входная группа,
- панорамное остекление в пол,
- шаг колонн 8,4 х 8,4 м,
- высота потолков от 4,1 м,
- отделка - shell&core,
- энерговооруженность - 100 Вт/м,
- 3 отдельных лифтовых группы: 8 грузопассажирских лифтов и 2 подъемника, время ожидания - не более 30 сек.
Общая площадь БЦ - 18 589 м2
Этажность - 11 этажей
Наземный паркинг на 160 м/м, дополнительно можно использовать бесплатные городские парковки по периметру. [#7533391#]