- Адыгея Хакуринохабль
- Размещено: 11 ноября 9:00
39.815 руб.
Номер: BLD-98765176284080981
Тел.:
| Тип предложения | Сдам в аренду (долгосрочно) |
| Вид объекта | свободного назначения |
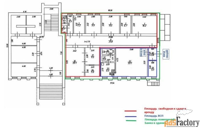
| Площадь (м²) | 125.6 |
Номер процедуры: SBR065-2504080009
Собственник: Юго-Западный Банк ПАО Сбербанк
Нежилое помещение,
общая площадь: 125,6 м2
этаж: 1
кадастровый номер: 01:07:3000045:91
Дополнительные условия:
Помимо арендной платы Арендатор уплачивает переменную арендную плату в месяц с учетом НДС 6 772,35.
Дополнительная информация, документы и условия реализации указаны на площадке в разделе
«Документы».
По всем вопросам, связанным с лотом, обращайтесь в рабочее время по телефону с 09:00 до 18:00 по МСК. [#6741724#]



