Наверх
«Фабрика объявлений»

в социальных сетях

  • Мы в соц. сетях - Vkontakte
  • Мы в соц. сетях - Facebook
  • Youtube
  • Мы в соц. сетях - Odnoklassniki
  • Мы в соц. сетях - Мой мир

Полезная страница?

Coхранить в закладках
Не пропускай выгодные объявления!

Подключай нашего Telegram-бота и получай свежие предложения первым!

Telegram-бот портала Фабрика объявлений
× Уважаемый пользователь! на Вашем браузере установлен блокировщик рекламы который может вызвать некорректную работу сайта, подробнее

производственно-складской комплекс/помещение, 102 м² в Деревне Грибках

  • Московская область деревня Грибки

  • Размещено: 28 июля 9:36
  • Обновлено: 3 ноября 1:24
  • Просмотров: 53
  • Не в сети Автор не в сети, однако, можете позвонить по указанному номеру.

120.000 руб.

Золотая Звезда - Сергей с нами более четырёх лет! Сергей (Частное лицо)

Показать телефон

Пожалуйста, скажите автору, что нашли это объявление на доске
«Фабрика объявлений»

Отправить письмо

Отправка сообщения
Нажмите для сканирования QR-кода
QR код

Номер:

2 объявлений пользователя

94567_1753080514 BLD-945671753684595

Описание

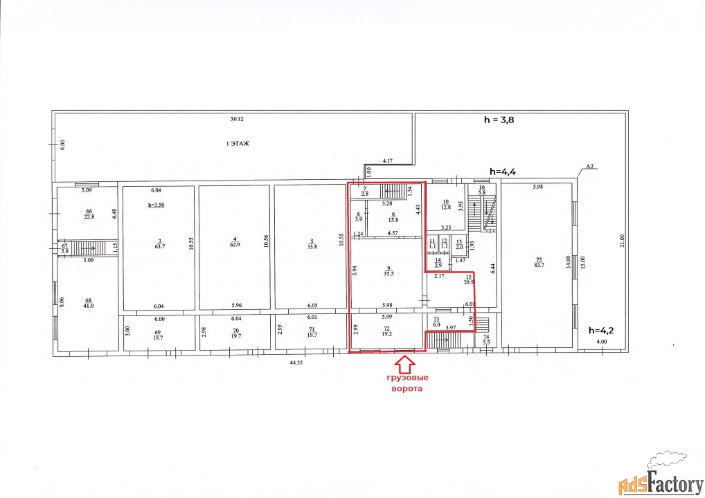
Помещение под пищевое производство 1-й этаж, площадь 102 кв. м. аренда. Стандартный ремонт, пол, часть стен плитка, выводы воды, канализация, вытяжка, 380в, газ, складские помещения, грузовые ворота. Территория торгово-складского комплекса на 1-й линии Дмитровского шоссе, бесплатный въезд на территорию.. остановки общественного транспорта, 5 км от МКАД.

Читать дальше

Дополнительная контактная информация

  • Контактное лицо: Сергей

  • Номер телефона: +79855001222

Адрес:  Московская область, городской округ Мытищи, деревня Грибки, Складская улица, 5

preloader

Дополнительная информация

Тип предложенияСдам в аренду (долгосрочно)
Вид объектапроизводственно-складской комплекс/помещение
Площадь (м²)102
  • В избранное
  • Пожаловаться
Отправка сообщения


Сделай доброе дело – поделись хорошим предложением! 😀

  • Скопирован

    Прямая ссылка на страницу  

    https://www.adsfactory.ru/nedvizhimost/kommercheskaya-nedvizhimost/derevnya-gribki-proizvodstvenno-skladskoj-kompleks-pomeschenie-102-m-BLD-945671753684595 
  • Скопирован

    Опубликовать в блоге (html-код)

    <a target=_blank title="Производственно-складской комплекс/помещение, 102 м²"  href="https://www.adsfactory.ru/nedvizhimost/kommercheskaya-nedvizhimost/derevnya-gribki-proizvodstvenno-skladskoj-kompleks-pomeschenie-102-m-BLD-945671753684595">Производственно-складской комплекс/помещение, 102 м²</a> 
  • Скопирован

    Опубликовать на форуме (bb-код)

    [url=https://www.adsfactory.ru/nedvizhimost/kommercheskaya-nedvizhimost/derevnya-gribki-proizvodstvenno-skladskoj-kompleks-pomeschenie-102-m-BLD-945671753684595]Производственно-складской комплекс/помещение, 102 м²[/url] 

P.S. Спасибо! 🙂

Похожие объявления


 

Магазин для бизнеса на доске «Фабрика объявлений»

 

 

2017 - 2025 | «Фабрика объявлений» - доска объявлений
FACTORY ALLIANCE © Все права защищены
 
Форма обратной связи на портале «Фабрика объявлений»
Загружем....