- Ульяновская область Ульяновск
- Размещено: 16 декабря 9:00
86.240 руб.
Номер: BLD-9876517658648261762
Тел.:
| Тип предложения | Сдам в аренду (долгосрочно) |
| Вид объекта | гараж |
| Тип объекта | |
| Машиномест | 1 |
| Площадь (м²) | 215.6 |
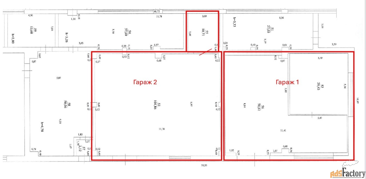
Помещения в аренду – под гараж, СТО, автосервис или склад.
Гараж 1 – 100 м2.
Гараж 2 – 115, 6 м2.
Арендная ставка – 400 р/м2.
Гаражи располагаются на территории производственной базы, периметр огорожен, видеонаблюдение, КПП, охрана круглосуточно. Доступ 24/7.
Удобные пути подъезда.
Характеристики:
- Ворота - 3х3м.
- Сетевое напряжение – 220В, 380В.
- Есть отдельные помещения для бытовок.
- Пол ровный, бетонный.
- Отопление.
Рядом с гаражами установлена эстакада, по потребности аренда обсуждается.
Коммунальные услуги оплачиваются отдельно, эл/эн по счётчику, отопление пропорционально занимаемой площади.
Аренда от собственника.
Звоните, договоримся о показе! [#7321476#]



