- Краснодарский край Краснодар
- Размещено: 13 декабря 9:00
22.000.000 руб.
Номер: BLD-9876517656056141030
Тел.:
| Тип предложения | Продажа |
| Вид объекта | дом |
| Число комнат | 3 |
| Этажность здания | 1 |
| Общая площадь (кв.м) | 130 |
| Жилая площадь (кв.м) | 104 |
| Площадь кухни (кв.м) | 10 |
| Площадь участка (сот.) | 4.5 |
| Год постройки (г.) | 2025 |
| Материал стен | кирпичный |
| Дополнительные параметры | |
| Электричество | |
| Газ в доме | |
| Отопление | |
| Интернет | |
| Канализация | |
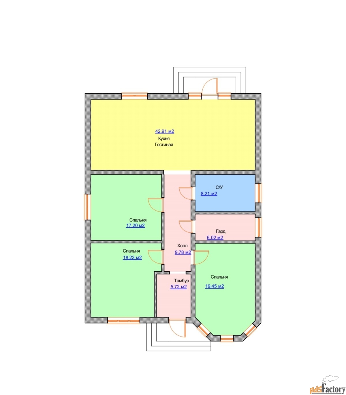
На 4.5 сотках расположен новый дом 130м2, потолки 3.5м, кухня-гостиная 40м2, продумано всё до мелочей. ПЧО. Коммуникации все центральные (свет, газ, вода, отопление).
По качеству строительства дома подобных в рынке нет. Так качественно строят только для себя. Готовы к любым проверкам, экспертизам. Плюшек в нём очень много.
Это современный и комфортабельный дом, построенный с использованием самых передовых технологий и материалов. Каждый элемент этого дома создан с заботой о вашем будущем благополучии и комфорте.
Основные характеристики:
Прочная конструкция: Надежный фундамент и качественные материалы гарантируют долговечность и устойчивость здания.
Энергоэффективность: Инновационные системы утепления и энергосбережения помогут вам сэкономить на коммунальных платежах.
Продуманная планировка: Функциональные и эргономичные помещения, созданные для комфортной жизни всей семьи.
Безопасность: Современные системы безопасности и контроля доступа обеспечат вам спокойствие и уверенность.
В шаговой доступности вся инфраструктура, удобная транспортная развязка. Садики, школы, магазины, аптеки, поликлиники, рынки, супермаркеты, гипермаркеты, рынки, парк, аэропорт и т.д.
По интересующим вопросам звоните. Показ в любое время.
Собственник. [#7755359#]



