- Московская область Сосенское поселение
- Размещено: 1 ноября 9:03
10.613.540 руб.
Номер: BLD-11057417619769981206
Тел.:
| Тип предложения | Продажа |
| Тип продажи | свободная продажа |
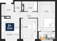
| Число комнат | 1 |
| Этаж | 15 |
| Этажность здания | 17 |
| Общая площадь (кв.м) | 32.9 |
| Жилая площадь (кв.м) | 12.7 |
| Площадь кухни (кв.м) | 9.8 |
| Срок сдачи (г.) | 2026 |
| Высота потолков (м.) | 2.8 |
| Состояние | без отделки |
| Дополнительные параметры | |
| Балкон или лоджия | |
| Центральное водоснабжение | |
| Парковка | |
Квартира будет сдана без отделки. Установлены стеклопакеты с повышенной тепло- и шумоизоляцией, установлены элементы отопления, входная дверь, заведены все коммуникации. Вы сможете реализовать свои дизайн-проект.
Дом монолитный, многоподъездный, переменной этажности, от 9 до 19 этажей. Квартира находится во 2-й секции высотой 17 этажей в корпусе 9.1. На этаже 7 квартир. В подъезде 1 пассажирский и 1 грузовой лифт. Начало строительства - 4 квартал 2023 года. Окончание строительства - 2 квартал 2026 года. Оформление сделки по договору долевого участия.
Артикул квартиры по базе застройщика 14К-9.1-144.
В шаговой доступности от жилого комплекса расположена станция метро (расстояние по прямой) «Потапово» (1.4 км), также недалеко от этого корпуса расположены станции метро: «Ольховая», «Бунинская аллея», «Улица Горчакова», «Коммунарка».
ПРЕДЛОЖЕНИЯ ОТ ЗАСТРОЙЩИКА В ОКТЯБРЕ 2025:
Ипотека от 13,9 % для всех! На весь срок.
«Семейная ипотека» вернулась. Ставка от 3,5 % на весь срок! Без удорожания!
Выгодное ипотечное комбо: Ипотека от 2200 р./мес. и от 6 % после рождения ребёнка!
Ипотека для всех «Держи пять!» - ставка 5 % на 2 года!
*более подробную информацию по скидкам и акциям уточняйте в отделе продаж.
Жилой район «Бунинские кварталы» строится в Новомосковском округе столицы. До станции «Потапово» Сокольнической линии метро – 1700 метров. Вдоль северной границы района проходит проспект Куприна. Рядом проектируется автодорога МКАД – Коммунарка – Остафьево. В шаговой доступности – остановки общественного транспорта.
Жители «Бунинских кварталов» будут с комфортом пользоваться полноценной и разнообразной инфраструктурой своего района и соседних районов столицы. На расстоянии 5-10 минут пешей прогулки действуют и открываются новые торговые, социальные, спортивно-развлекательные объекты. В 5 минутах езды на транспорте – гипермаркет «Глобус».
Новый район из монолитных домов с безопасными закрытыми дворами и подземными паркингами строится на юго-западе Москвы, в живописном природном окружении. Рядом – крупные автомагистрали и станции метро. Но чтобы получить захватывающие впечатления и интересно провести время, жителям не нужно будет уезжать далеко от дома – достаточно пройти несколько шагов до центральной площади или благоустроенного лесопарка в южной части района.
В жилом комплексе будут созданы все условия для общения и активного времяпрепровождения людей всех возрастов и разнообразных увлечений. Его наполнит особенная дружелюбная атмосфера, в которой легко завязываются контакты, взрослые и дети делятся увлечениями, демонстрируют свои таланты.
Проект комплексного благоустройства района разрабатывает профессиональное архитектурное бюро «ПланАр». Его главная идея – «Выходи гулять!» Общественные пространства организованы так, чтобы обеспечить одновременно и взаимодействие, и разделение активностей для людей разных возрастных групп и интересов. (AQID02323627)



