- Московская область Десеновское поселение
- Размещено: 28 ноября 9:03
16.999.966 руб.
Номер: BLD-11057417643098101954
Тел.:
| Тип предложения | Продажа |
| Тип продажи | свободная продажа |
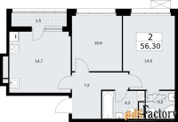
| Число комнат | 2 |
| Этаж | 11 |
| Этажность здания | 13 |
| Общая площадь (кв.м) | 52.7 |
| Жилая площадь (кв.м) | 23.1 |
| Площадь кухни (кв.м) | 12.4 |
| Срок сдачи (г.) | 2028 |
| Высота потолков (м.) | 2.95 |
| Состояние | без отделки |
| Дополнительные параметры | |
| Балкон или лоджия | |
| Центральное водоснабжение | |
| Парковка | |
Эта квартира предлагается без отделки. Будут установлены стеклопакеты с повышенной тепло- и шумоизоляцией, в квартиру заведены все коммуникации. Вы сможете в полном объеме реализовать ваши идеи обустройства вашего комфортного дома. Для тех, кто ценит время и не хочет дополнительных трат на ремонт мы предлагаем квартиры с предчистовой и дизайнерской отделкой.
Дом монолитный, двухподъездный, высотой 13 этажей. Квартира находится во 2-й секции в корпусе 7.2. На этаже 5 квартир. В подъезде 1 пассажирский и 1 грузовой лифт. Начало строительства - 2 квартал 2025 года. Окончание строительства - 1 квартал 2028 года. Оформление сделки по договору долевого участия.
Артикул квартиры по базе застройщика 88К-7.2-578.
ПРЕДЛОЖЕНИЯ ОТ ЗАСТРОЙЩИКА В ОКТЯБРЕ 2025:
Ипотека от 13,9 % для всех! На весь срок.
«Семейная ипотека» вернулась. Ставка от 3,5 % на весь срок! Без удорожания!
Выгодное ипотечное комбо: Ипотека от 2200 р./мес. и от 6 % после рождения ребёнка!
Ипотека для всех «Держи пять!» - ставка 5 % на 2 года!
*более подробную информацию по скидкам и акциям уточняйте в отделе продаж
Масштабный проект «Деснаречье» на юго-западе Москвы, который включает три новых района («квартала»), объединённые общей идеей – воплотить в реальность мечты современных жителей столицы об интересном, комфортном и разноплановом городском пространстве в окружении рек и лесов, словно сошедших с полотен русских живописцев:
- «Берег» оценят все, кому близка водная стихия: плеск волн, солнечные блики и прогулки вдоль тихого течения речи.
- «Лес» утопает в зелени парков и лесов. Здесь соблюдён идеальный баланс загородного спокойствия и столичного комфорта.
- «Парк», самый энергичный и яркий, отличается высокой концентрацией пространств для спорта и творчества.
Жилой комплекс «Деснаречье» расположится в 12 км от МКАД по современному Калужскому шоссе.
Внешний облик зданий соответствует современному стилю и стандартам, характерным и для других популярных проектов ГК «А101»: сочетание контрастных тонов, большое количество остекления, в котором отражается небо, гармония с природным окружением.
Весь город - в вашем районе. Находиться на территории «15-минутного города» значит иметь всё необходимое для полноценной жизни в шаговой доступности. Маршруты в районе «Деснаречье» выстроены так, чтобы добраться до магазинов, парков, школ, салонов услуг и других объектов можно было всего за несколько минут пешком или на велосипеде.
Двор закрытый от машин – это тишина, комфорт и безопасность, поэтому все машино-места (включая «семейные» и увеличенные, с возможностью установки роллетных шкафов) находятся в подземном паркинге. В паркинги можно спуститься на лифте из любого подъезда или по лестнице.
Рядом с «Деснаречьем» в 2027 году планируется открытие станции метро «Десна», до которой будет удобно добраться пешком или на велосипеде. Дорога на автомобиле до перехватывающих парковок станций «Ольховая» и «Прокшино» займёт около 10 минут.
В процессе реализации проекта будут появляться новые маршруты общественного транспорта по районам. Уже сейчас на Калужском шоссе развита сеть наземного транспорта: два десятка автобусов и маршрутных такси прибывают на остановки с интервалом 5–10 минут. (AQID02490877)



