- Московская область Орехово-Зуево
- Размещено: 14 ноября 9:00
8.752.000 руб.
Номер: BLD-987651763100012474
Тел.:
| Тип предложения | Продажа |
| Вид объекта | свободного назначения |
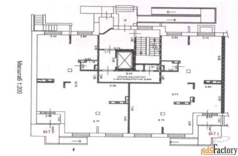
| Площадь (м²) | 109.4 |
Продажа от Застройщика. Помещение имеет отдельный вход. Удобная транспортная доступность. Первый этаж. Вся современная инженерия. Высота потолков 4 метра. Электрическая мощность 0,2 кВт на м2. Состояние помещений - под отделку. [#7533367#]



