- Московская область Москва
- Размещено: 14 ноября 9:00
46.457.000 руб.
Номер: BLD-987651763100009105
Тел.:
| Ближайшее метро | Пятницкое шоссе, 0 метров |
| Тип предложения | Продажа |
| Вид объекта | свободного назначения |
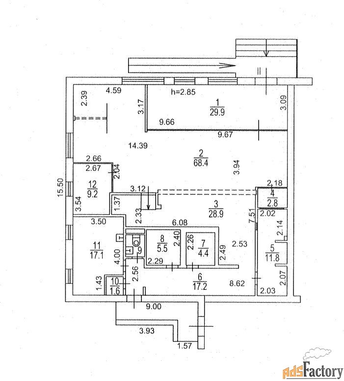
| Площадь (м²) | 198.7 |
Продажа посредством проведения торгов на электронной площадке Сбербанк-АСТ.
Номер процедуры: SBR065-2511120001
Собственник: Московский банк ПАО Сбербанк
О лоте:
Нежилое помещение площадью 198,7 кв.м.,
Этаж: 1
Кадастровый номер: 77:08:0002014:2070
Обратная аренда: нет
Особые условия:
На Объекте произведена перепланировка, не согласованная в установленном законом порядке.
Дополнительная информация, документы и условия реализации указаны на площадке в разделе «Документы».
По всем вопросам, связанным с лотом, обращайтесь в рабочее время по телефону с 09: 00 до 18: 00 по МСК. [#6889002#]



