- Ленинградская область Коммунар
- Размещено: 30 октября 9:00
8.500.000 руб.
Номер: BLD-987651761804014878
Тел.:
| Тип предложения | Продажа |
| Вид объекта | дом |
| Число комнат | 1 |
| Этажность здания | 2 |
| Общая площадь (кв.м) | 166 |
| Жилая площадь (кв.м) | 132.8 |
| Площадь кухни (кв.м) | 10 |
| Площадь участка (сот.) | 6 |
| Год постройки (г.) | 2022 |
| Материал стен | блочный |
| Состояние | требует ремонта |
| Дополнительные параметры | |
| Электричество | |
| Газ в доме | |
| Отопление | |
| Канализация | |
Коммуникации: газовый котел, магистральное газоснабжение, электроснабжение, колодец, канализация септик. Кроме дома есть: фундамент (плита) под гараж со смотровой ямой.
Категория земли: земли населенных пунктов.
подходит под сельскую ипотеку
Продается современный коттедж, в 5 минутах от Павловска, в 1 км от ЖД станции Антропшино. Построен в 2022 году по индивидуальному проекту, разработанному специализированной организацией (есть полный проект АР, КР, ОВ, ВК).
Дом стоит на монолитной плите 300 мм, стены газобетон 300 мм+ мин вата РОКВОЛ 50 мм. Перекрытия между этажами- монолитная плита. Кровля - битумная черепица Shinglas.
В доме 2 этажа, плюс холодный чердак, на крыше предусмотрен вент. блок для естественной вентиляции.
Водоснабжение - колодец 8 колец (вода заведена в дом)
Канализация - септик, 2 колодца по 3 кольца.
Дом газифицирован. Электричество 380 вольт.
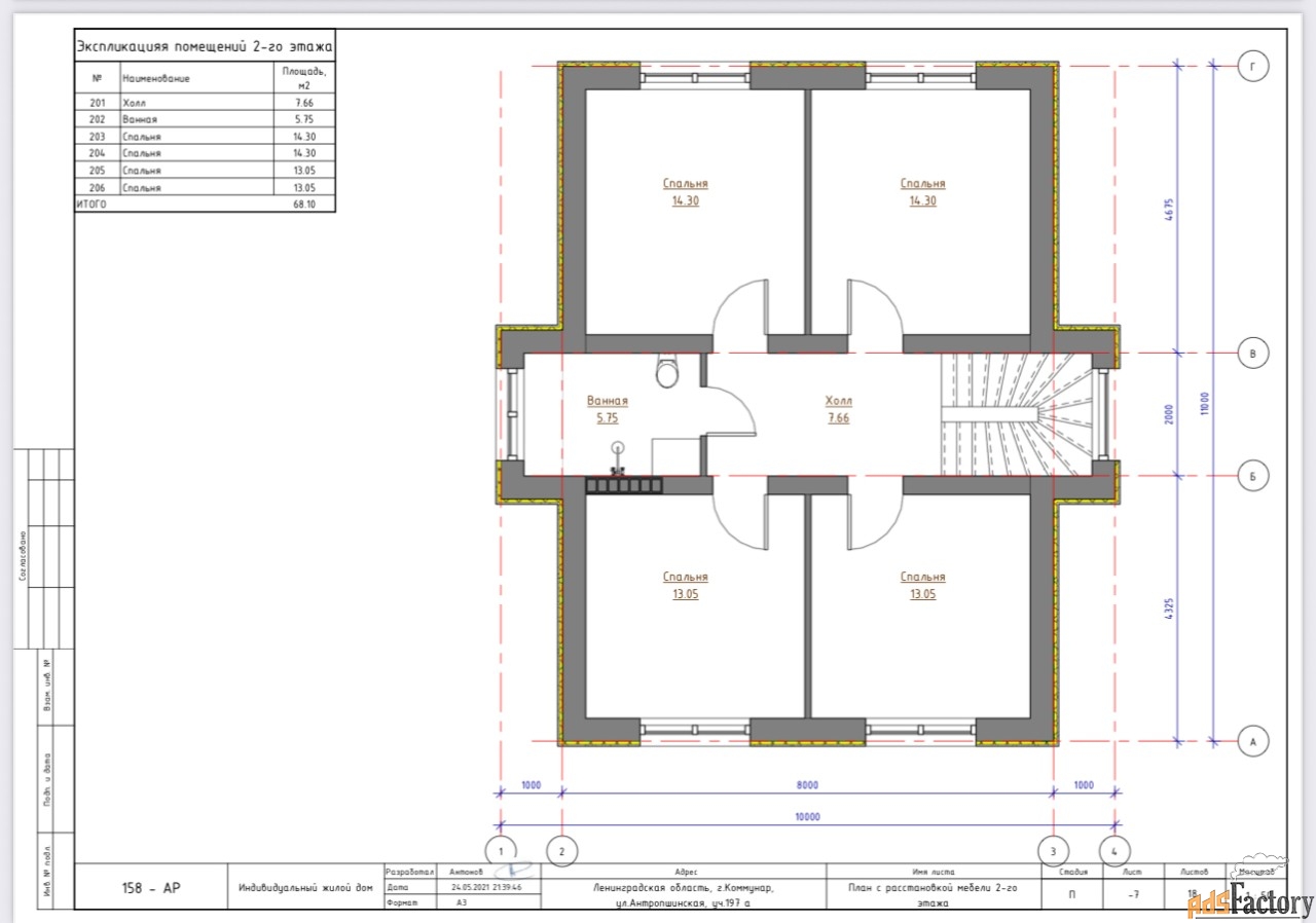
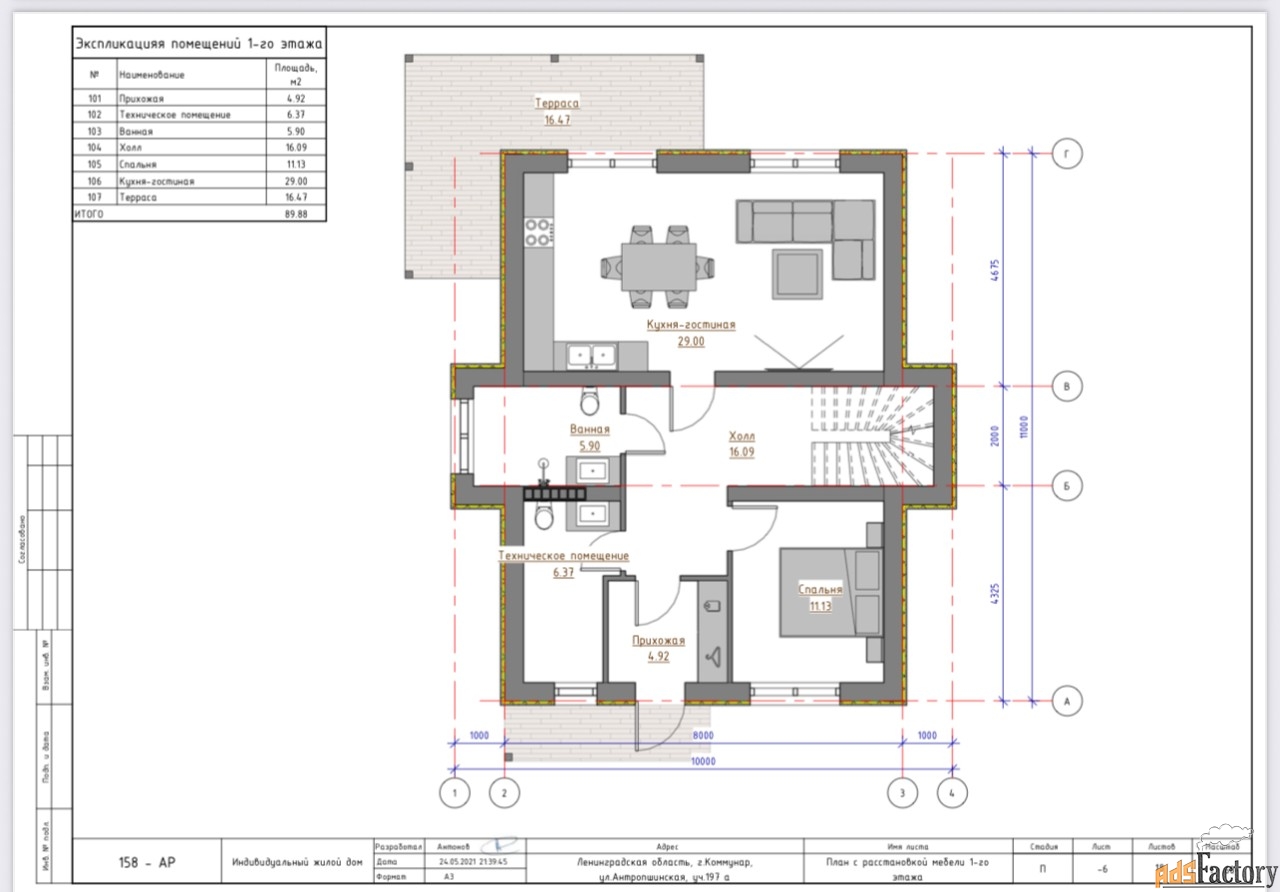
В доме 2 больших сан узла, 5 жилых комнат, и большая кухня гостиная.
Дом без внутренней отделки, установлен металлический каркас лестницы.
На участке имеется баня из бревна.
Участок фактически огражденный забором 11 соток, из них 6 соток ИЖС собственность, остальные нужно оформлять. Так же на участке располагается большой сарай на монолитной плите, размер 6,5х7,1 (можно снести и Построить гостевой дом 90 м.кВ.)
Так же на участке залита монолитная плита под большой гараж со смотровой ямой. [#7653051#]



